FIMAA Siena

Federazione Italiana Mediatori Agenti d'Affari della provincia di Siena

P.zza G. Matteotti 33 - Via Malavolti 2 - 53100 Siena (SI) - 0577 40591

SIENA CENTRO: A POCHI PASSI DA PORTA PISPINI. Appartamento di 175 mq in fase di ristrutturazione


Siena | | Mq 175 | 630.000,00

Descrizione

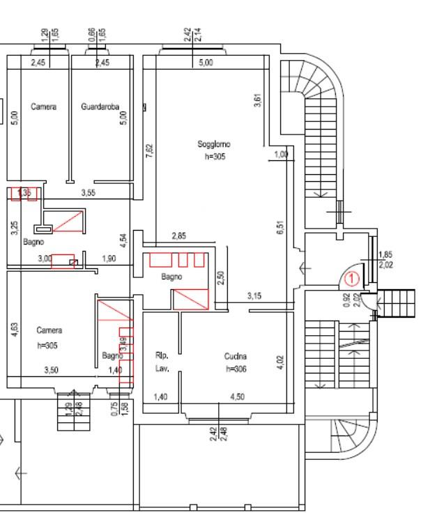
SIENA SANT'EUGENIA: A POCHI PASSI DA PORTA PISPINI. VENDESI appartamento di 175 mq catastali in fase di totale ristrutturazione. L'immobile posto al primo piano si comporrà di: ampia zona giorno/pranzo con caminetto, cucina con ripostiglio terrazzo abitabile, disimpegno, 3 bagni, 3 camere di cui una con terrazzo collegabile al primo, piccolo resede di accesso, 40 mq di cantine al piano terreno trasformabili in garage (su richiesta). La disposizione interna risulta ancora modificabile in base alle esigenze dell'acquirente. Capitolato dei lavori disponibile in agenzia. La classe energetica sarà minimo A. Inclusi anche i lavori di risistemazione di tetto e facciata del condominio.

Dettagli

  • Riferimento: A000038
  • Tipologia: Appartamento
  • Comune: Siena
  • Zona: Centro città
  • Cucina: Cucina abitabile
  • N. Bagni: 3
  • N. Camere: 3
  • Box:
  • Piano: 1° di 3
  • Anno costruzione: 1950
  • Stato conservazione: Ristrutturato
  • Stato:
  • Spese cond. annue €:
  • Riscaldamento: Autonomo
  • Caratteristiche

    Terrazzo, Balcone, Cantina 40 mq, Giardino di proprietà, Predisposizione condizionatore

    Localizzazione - Siena

    AGENZIA IMMOBILIARE MASSIMO BROGI SRL

    P.zza G. Matteotti 33 - Via Malavolti 2
    53100 Siena (SI)

    0577 40591

    Richiedi informazioni

    Ho letto e accetto informativa sulla privacy.

    P.zza G. Matteotti 33 - Via Malavolti 2 - 53100 Siena (SI) - 0577 40591


    SIENA CENTRO: A POCHI PASSI DA PORTA PISPINI. Appartamento di 175 mq in fase di ristrutturazione

    | Mq 175 | 630.000,00

    Siena

    SIENA SANT'EUGENIA: A POCHI PASSI DA PORTA PISPINI. VENDESI appartamento di 175 mq catastali in fase di totale ristrutturazione. L'immobile posto al primo piano si comporrà di: ampia zona giorno/pranzo con caminetto, cucina con ripostiglio terrazzo abitabile, disimpegno, 3 bagni, 3 camere di cui una con terrazzo collegabile al primo, piccolo resede di accesso, 40 mq di cantine al piano terreno trasformabili in garage (su richiesta). La disposizione interna risulta ancora modificabile in base alle esigenze dell'acquirente. Capitolato dei lavori disponibile in agenzia. La classe energetica sarà minimo A. Inclusi anche i lavori di risistemazione di tetto e facciata del condominio.

    Riferimento: A000038

    Tipologia: Appartamento

    Comune: Siena

    Zona: Centro città

    Cucina: Cucina abitabile

    N. Bagni: 3

    N. Camere: 3

    Box:

    Piano: 1° di 3

    Anno costruzione: 1950

    Stato conservazione: Ristrutturato

    Stato:

    Spese cond. annue €:

    Riscaldamento: Autonomo

    Classe energetica:

    Terrazzo, Balcone, Cantina 40 mq, Giardino di proprietà, Predisposizione condizionatore